For Sale
Reduced
£875,000

Hamilton Quay, Sovereign Harbour, Eastbourne

4
4
2

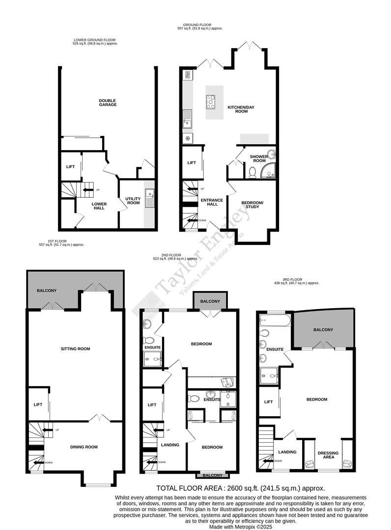
Taylor Engley are delighted to offer to the market this well presented FIVE STOREY WATERSIDE TOWN HOUSE, located in the prestigious Hamilton Quay Development at Eastbourne’s Sovereign Harbour North. This well appointed property offers spacious and versatile living accommodation with all principal rooms enjoying excellent views over the North Harbour waters. The property benefits from gas fired central heating, double glazed windows and has features that include a private passenger lift to all floors, fitted kitchen/day room, bedroom four/optional study, waterside terrace, sitting room with balcony, dining room, three en-suites, utility room and an integral double garage.

  • SUPERB HARBOUR VIEWS
  • PRESTIGIOUS GATED HAMILTON QUAY DEVELOPMENT
  • HARBOUR VIEW FROM ALL PRINCIPAL ROOMS
  • PRIVATE PASSENGER LIFT TO ALL FLOORS
  • SPACIOUS FITTED KITCHEN/DAY ROOM
  • WATERSIDE PATIO TERRACE
  • BEDROOM FOUR/OPTIONAL STUDY
  • THREE EN-SUITES PLUS SEPARATE GROUND FLOOR SHOWER ROOM
  • INTEGRAL DOUBLE GARAGE
  • CHAIN FREE

Request a Viewing

Complete the form below and one of our team will be in touch

    This site is protected by reCAPTCHA and the Google Privacy Policy and Terms of Service apply.
    Agent Details
    Lorraine Robinson
    Head of Administration, Accounts, & Sales Progression
    Lorraine joined Taylor Engley in 2017. Highly enthusiastic, her motivation comes from a love of houses and finding buyers their ideal home. She very much enjoys working at Taylor Engley and looks forward to helping clients and buyers alike, with all their property needs. Lorraine spends her free time relaxing with family and friends and enjoying plenty of walks around our very beautiful part of the south coast.

    Want to find out more?

    Our dedicated team is ready to provide you with the assistance you need.

    How much is your property really worth?

    Choose an option below to get an instant valuation or book an in-person appraisal.