For Sale
Reduced
£650,000

Rattle Road, Westham, Pevensey

3
3
2

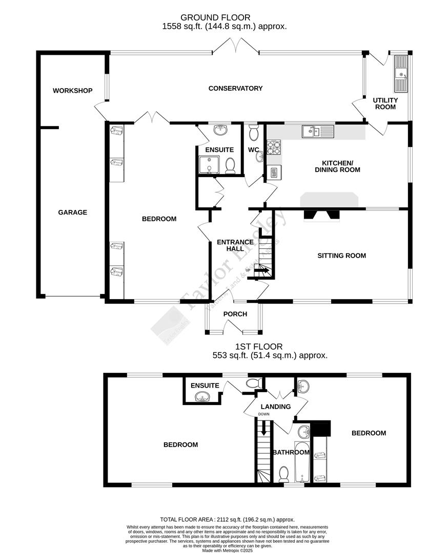
GUIDE PRICE £650,000 – £700,000 * CHAIN FREE * Taylor Engley are pleased to offer you a unique opportunity to purchase this spacious three/four bedroom detached chalet style property, located in the favoured Westham area. Hazelbank is offered with EQUESTRIAN FACILITIES, including LAND OF APPROXIMATLEY ONE AND A HALF ACRES, STABLES, A SAND SCHOOL, HAY BARN, WORKSHOP/TOOL SHED, 3 POULTRY PENS AND A TACK ROOM/FEED STORE, making this property a rare find in the area. This property is not just a home; it is a lifestyle choice, combining the serenity of rural living with the practicality of modern amenities. Whether you are looking to embrace equestrian pursuits or simply enjoy the grounds, this property on Rattle Road is a must-see. * GAS FIRED CENTRAL HEATING & SEALED UNIT DOUBLE GLAZING * POSSIBLE POTENTIAL FOR REDEVELOPMENT, SUBJECT TO THE RELEVANT PLANNING CONSENT * EPC = E

  • CHAIN FREE
  • EQUESTRIAN FACILITIES
  • LAND OF APPROXIMATLEY ONE AND A HALF ACRES
  • SAND SCHOOL
  • STABLES
  • FURTHER OUTBUILDINGS
  • GAS FIRED CENTRAL HEATING
  • GARAGE
  • THREE BATHROOM
  • CONSERVATORY

Request a Viewing

Complete the form below and one of our team will be in touch

    This site is protected by reCAPTCHA and the Google Privacy Policy and Terms of Service apply.
    Agent Details
    Lorraine Robinson
    Head of Administration, Accounts, & Sales Progression
    Lorraine joined Taylor Engley in 2017. Highly enthusiastic, her motivation comes from a love of houses and finding buyers their ideal home. She very much enjoys working at Taylor Engley and looks forward to helping clients and buyers alike, with all their property needs. Lorraine spends her free time relaxing with family and friends and enjoying plenty of walks around our very beautiful part of the south coast.

    Want to find out more?

    Our dedicated team is ready to provide you with the assistance you need.

    How much is your property really worth?

    Choose an option below to get an instant valuation or book an in-person appraisal.